Genfa Garden Belek

 

Genfa Garden Belek , şehir yaşamının karmaşasından uzak, doğayla iç içe modern bir yaşam alanı sunan çağdaş bir konut projesidir. Bu proje, 1.700 metrekarelik bir alan üzerinde yükseltilecek olup, toplamda 22 daireden oluşan lüks bir yaşam kompleksi olarak tasarlanmıştır. Proje, çevreci mimarisi, sürdürülebilir enerji kaynaklarından yararlanması ve modern inşaat teknolojileri kullanılarak inşa edilmesiyle dikkat çekmektedir. Proje kapsamında, yeşil alanlar, yürüyüş parkurları, sosyal tesisler, spor alanları yer almaktadır. Genfa Garden Belek, şehir merkezine sadece 20 dakikalık mesafede olup, ana yollar ve toplu taşıma hatlarına yakın bir lokasyonda konumlanmıştır. Bu sayede sakinlerine hem doğa ile iç içe hem de merkezi noktalara kolay erişim sağlayan bir yaşam sunmaktadır. Ayrıca, yakınında bulunan okul, hastane ve alışveriş merkezleri, yaşam kalitesini arttıran unsurlar arasındadır.  Genfa Garden Belek, minimal ve fonksiyonel mimarisiyle modern yaşam alanlarının ihtiyaçlarına cevap verecek şekilde tasarlanmıştır. Projede, genış balkonlar, yüksek tavanlar, büyük pencereler ve akıllı ev teknolojileri standart olarak sunulacaktır. 1+1, 2+1 dubleks daire seçenekleri ile farklı yaşam tarzlarına hitap eden konutlar bulunmaktadır. Sosyal Olanaklar ve Hizmetler:Modern Vadi Konutları sakinlerine, site içerisinde birçok sosyal ve sportif aktivite imkânı sunmaktadır. Bunlar arasında; Yüzme havuzu, Fitness salonu, Çocuk oyun alanları Araç otopark alanları 7/24 güvenlik ve kamera sistemi Enerji Verimliliği ve Sürdürülebilirlik:Bu proje, LEED sertifikasına uygun şekilde tasarlanmış olup, güneş panelleri, gri su geri dönüşüm sistemi ve yüksek enerji verimliliğine sahip yılıtım malzemeleri kullanılarak inşa edilecektir. Bu sayede enerji maliyetleri düşürülerken, doğal kaynakların korunmasına da katık sağlanmaktadır. Yatırım Potansiyeli:Genfa Garden Belek, hem yaşam alanı olarak hem de yatırım açısından büyük bir potansiyele sahiptir. Şehir gelişim bölgesinde yer alması nedeniyle gayrimenkul değer artışının devam etmesi beklenmektedir. Ayrıca, kira getirisi yüksek olan bölgelerden biri olarak değerlendirilmektedir. Genfa Garden Belek, huzurlu, konforlu ve modern bir yaşam sürmek isteyenler için benzersiz bir seçenek sunmaktadır. Estetik tasarımı, doğayla iç içe konumu ve gelişmiş sosyal imkanlarıyla fark yaratacak olan bu proje, geleceğe yatırım yapmak isteyenler için kaçırılmaz bir fırsat sunmaktadır.

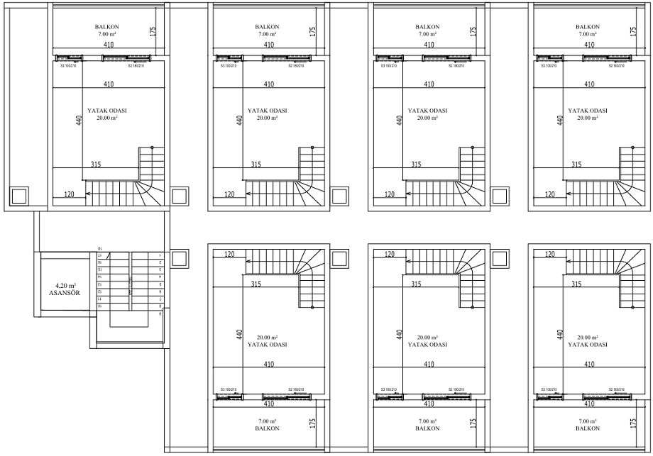
Konut Kat Planları

A Blok Zemin Kat Planı A Blok 1. Kat Planı A Blok Çatı Katı Planı B Blok Zemin Kat Planı B Blok 1. Kat Planı B Blok Çatı Katı Planı Genfa Garden Belek Proje Planı